Description de l'offre
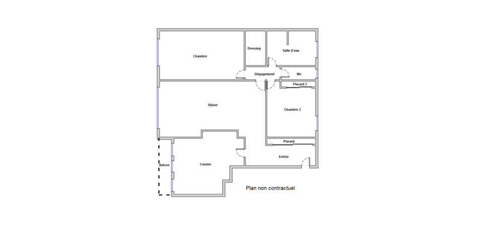
Quartier Vauvenargues / Belliard. A proximité des commerces de Guy Môquet et des métros Porte de Saint-Ouen et Guy Môquet. A 5 minutes du Marché Ordener. Dans un immeuble des années 50 très bien tenu avec gardienne. En étage élevé avec ascenseur, un appartement 3 pièces de 69,58 m² carrez composé d'une entrée avec une grande penderie, un beau séjour de 21 m², une cuisine ouverte donnant sur balcon, une chambre de 10,91 m², un grand dressing, une seconde chambre de 12,87 m² avec penderie intégrée, une jolie salle de bains avec douche et baignoire, un wc séparé. Appartement très lumineux et ensoleillé avec son exposition Ouest /Est. Bonne distribution des pièces sans perte de place. Nombreux rangements. L'immeuble dispose dun jardin partagé ainsi que d'un local vélo. Une cave complète ce bien.

