Description de l'offre
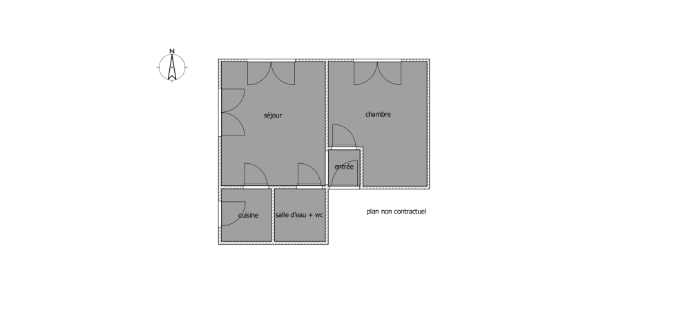
Idéalement situé au pied des commerces de Guy Môquet et du métro à 100 mètres. Au coeur d'un passage très calme. Un appartement 2 pièces de 24,08 m² carrez composé d'une entrée, un séjour avec 2 fenêtres exposées Ouest et Nord, une cuisine séparée (possibilité d'ouvrir sur le séjour, une chambre et une salle d'eau avec wc. Bonne distribution des pièces sans perte de place. Une cave au sous-sol complète ce bien. La presente annonce immobiliere vise 2 lots situés dans une copropriété de 8 lots au total. Montant moyen annuel de charges : 1664 euros. Taxe foncière 2024 : 389 euros. Information d'affichage énergétique sur ce bien : classe ENERGIE F indice 452 et classe CLIMAT C indice 14. Les informations sur les risques auxquels ce bien est exposé, sont disponibles sur le site Géorisques.

